Lamaison Immobilien
Telsergalerie 9 39100 Bozen (BZ)
+39 349 2985382
info@lamaison-immobilien.it

Zu verkaufen
Bozen, Schmiedgasse 15
Nur wenige Schritte vom Grieser Platz entfernt steht eine helle Wohnung mit ca. 102 m² Verkaufsfläche und Garage zum Verkauf.
Die Immobilie befindet sich im ersten Stock eines gepflegten Mehrfamilienhauses mit großzügigen Gemeinschaftsflächen.
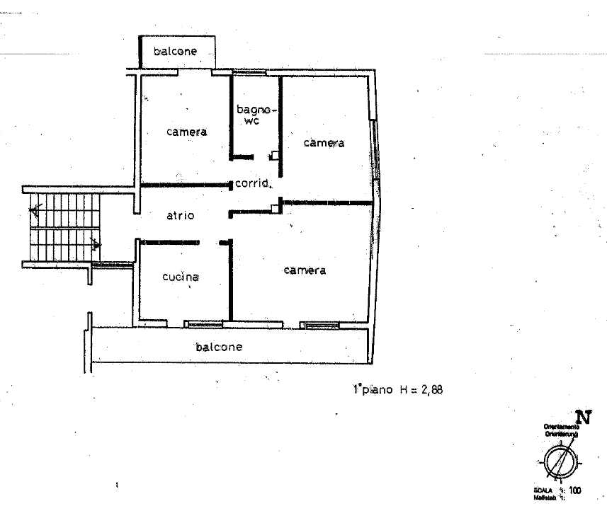
Die Wohnung, mit Süd-Südost-Ausrichtung, besteht aus einem Wohnzimmer mit Balkon, getrennter Küche, zwei Schlafzimmern, Tageslichtbad und Vorraum.
Zur Immobilie gehören außerdem zwei Balkone (insgesamt ca. 17 m²) sowie eine Garage im Untergeschoss, die auch direkt über das Treppenhaus erreichbar ist.
Die Lage ist ruhig und bestens angebunden, nur 200 m vom Grieser Platz und der Guntschna-Promenade entfernt, mit öffentlichen Verkehrsmitteln, Radweg und zahlreichen Geschäften in unmittelbarer Nähe.
Wichtige Ausstattungsmerkmale:
Energieausweis in Ausarbeitung
Preis: € 480.000 + € 40.000 Garage
Eine helle und komfortable Wohnung, ideal für alle, die Zentrumsnähe und Ruhe im beliebten Stadtteil Gries suchen.