Lamaison Immobilien
Telsergalerie 9 39100 Bozen (BZ)
+39 349 2985382
info@lamaison-immobilien.it

Verkauft
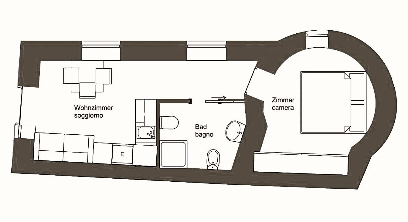
Völs am Schlern, Dorfstraße
Investitionsobjekt oder Ferienwohnung mit Charme
Diese sanierte Zweizimmerwohnung liegt im Erdgeschoss eines denkmalgeschützten Gebäudes im Dorfzentrum von Völs am Schlern.
Sie grenzt an das exklusive Turm Romantik-&Wellnesshotel und ist ein idealer Ausgangspunkt für Tagen auf den Skipisten der Umgebung, Radtouren oder Wanderungen in den Dolomiten.
Diese faszinierende Immobilie ist komplett möbliert und sofort verfügbar.
Energieausweis in Ausarbeitung